ПРОЄКТУВАННЯ
БУДІВЕЛЬНИХ КОНСТРУКЦІЙ
ПРИВАТНИХ БУДИНКІВ І КОТЕДЖІВ
Результат проектированя конструкций
РОЗРОБКА ПРОЕКТУ ВКЛЮЧАЄ:
Конструктив фундаментів
-
Розрахунок фундаменту на підставі інженерно-геологічних вишукувань та геодезичної зйомки ділянки.
-
Визначення ширини опорної частини та висоти, армування, опалубні креслення.
-
Схема закладних для введення комунікацій.
-
Розрахунок кількості бетону та арматури.
Конструктив стін і перекриттів
-
Схеми розташування колон, сердечників, перемичок, балок, армування та бетонування монолітних поясів.
-
Розгортка вентканалів, димоходу.
-
Конструкції монолітних сходів.
-
Схеми міжповерхового перекриття (плити перекриття, моноліт, дерево).
-
Розрахунок кількості основних матеріалів.
Конструктив покрівлі
-
Об'ємне моделювання кроквяної системи покрівлі.
-
Схеми установки мауерлата, опорних стійок, розкосів та крокв.
-
Розробка вузлів кріплення кроквяної системи.
-
Розріз покрівлі з відображенням всіх конструкцій кроквяної системи.
-
Розрахунок кількості основних матеріалів.
Состав конструкторского проекта
СКЛАД КОНСТРУКТОРСЬКОГО ПРОЕКТУ
*
Зовнішній вигляд фундаменту.
Прив'язка до місцевості.
Схема розподільної опорної стрічки фундаменту
Схема фундаменту щодо опорної стрічки
Схема стрічки фундаменту.
Опалубні розміри.
Схема розташування додаткової арматури
Схема розташування випусків для сердечників
Схема встановлення закладних у фундаментній стрічці
Розріз фундаменту за всіма напрямками
Витрата бетону та арматури для фундаменту
Перевірочні плани стін.
Діагональні розміри.
Зовнішній вигляд конструктиву колон і сердечників.
Схеми розташування колон і сердечників
Опалубка та армування колон та сердечників
Опалубка та армування колон несучих балок
Зовнішній вигляд конструктиву несучих стін
Схеми розташування та перерізу перемичок
Схема відображення технологічних отворів
Примітка до будівництва стін
Розгортки димового та вентиляційного каналів
Розрахунок, опалубка, армування сходів **
Зовнішній вигляд конструктиву перекриттів
Схеми розташування монолітних поясів
Схеми монолітних поясів.
Опалубні розміри
Схеми додаткової арматури у поясах
Схеми встановлення анкерів у поясах
Розгортки монолітних поясів з армуванням
Розрізи монолітних поясів з висотними відмітками
Витрати бетону та арматури для монолітних поясів
Схеми перекриття поверхів
(з/б плити, дерево, моноліт)
Схеми встановлення антисейсмічних анкерів
Схема установки шпильок для мауерлату
Схема додаткового обрамлення плит
Зовнішній вигляд кроквяної системи
Схема установки мауерлату на монолітній стрічці
Схема встановлення опорних стійок та розкосів
Схема розташування елементів покрівлі
Розрізи покрівлі, відображення конструктиву
Відомість дерев'яних елементів покрівлі
Схеми вузлів кріплення кроквяної системи
Зовнішній вигляд конструктивної схеми будинку
Примітки до складу конструкторського проекту:
* - Залежно від конструктивної схеми будинку, технології будівництва та будівельних матеріалів, що застосовуються, склад і кількість креслень може змінюватися.
** - Конструктив розробляється для монолітних сходів.
ЗОВНІШНІЙ ВИД КОНСТРУКЦІЙ ДОМУ
Пример внешнего вида конструкций
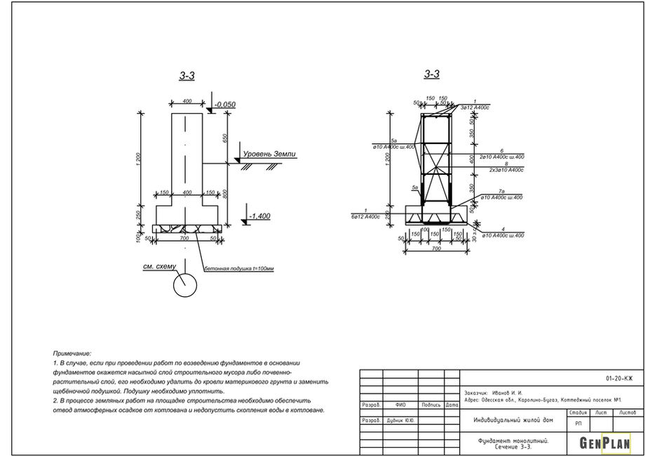
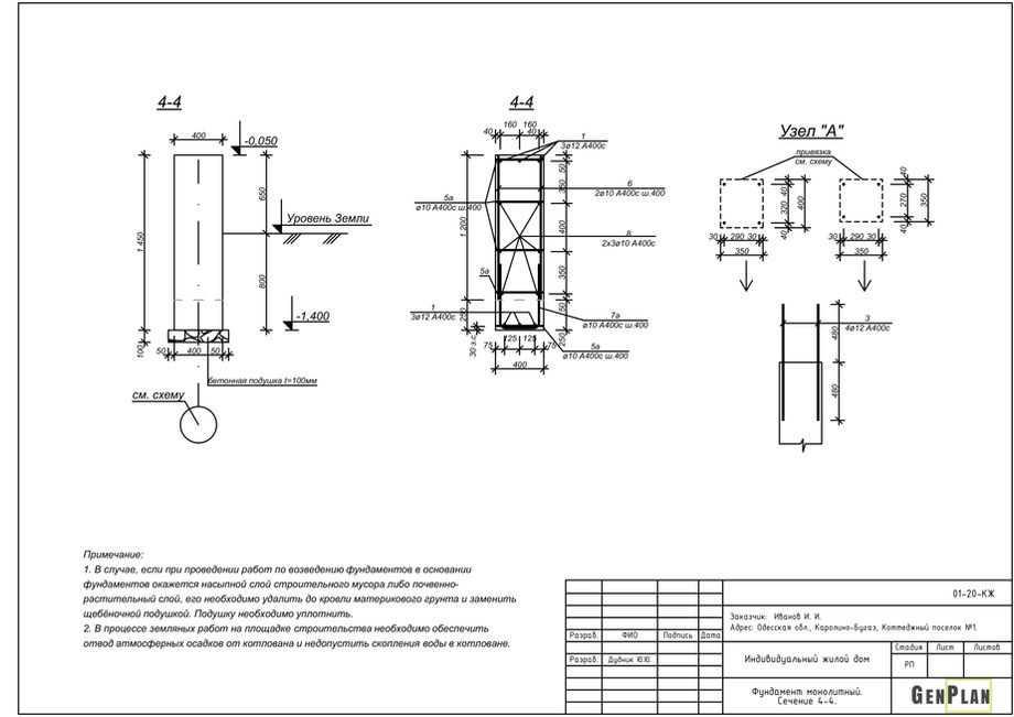
КРЕСЛЕННЯ ФУНДАМЕНТУ
Пример чертежей фундамента
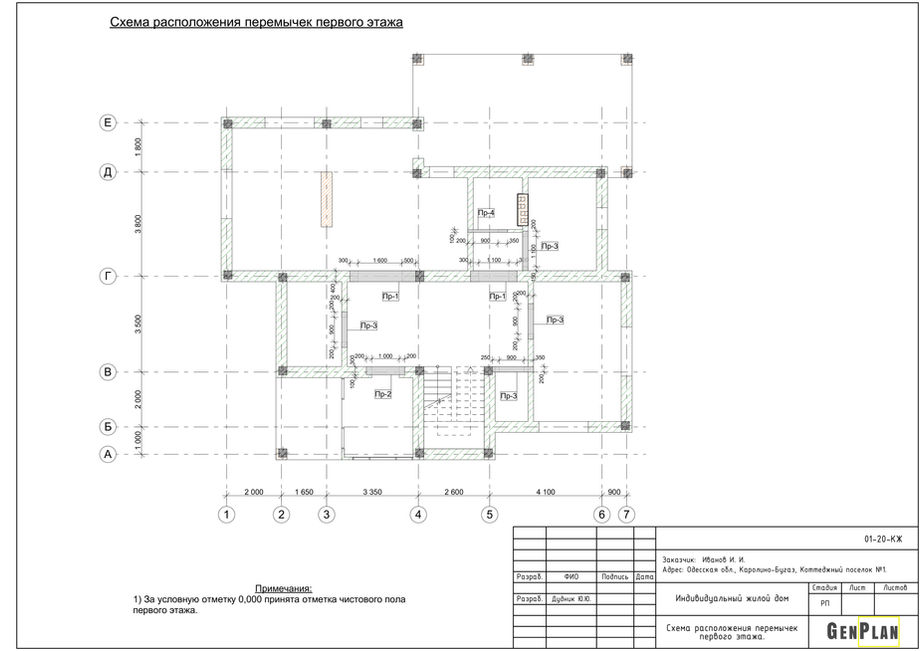
КОНСТРУКЦІЇ СТІН І ПЕРЕКРИТТІВ
Пример чертежей стен и перекрытий
КРЕСЛЕННЯ ПОКРІВЛІ
Пример чертежей кровли
Преимущества проекта конструкций
ПЕРЕВАГИ ПРОЕКТУ КОНСТРУКЦІЙ ДОМУ
1
Повний комплект креслень, необхідний для будівництва будинку.
2
Розрахунок будівельних конструкцій на міцність, надійність та довговічність
3
Розрахунок кількості основних будівельних матеріалів (бетон, метал, камінь, дерево)
4
3D-вид будівельних конструкцій (від фундаменту до кроквяної системи)
5
Розробка вузлів спирання та фіксації будівельних конструкцій
6
Розрахунок фундаментів на підставі навантажень від будинку та геологічних умов ділянки
7
Проектні рішення щодо сейсмостійкості будинку - посилення елементів стін та перекриття
8
Розрахунки залізобетонних конструкцій (фундаменти, балки, колони, перекриття)
9
Расчёты деревянных конструкций (стропильная система, перекрытия, балки)
10
Проектні рішення для збільшення енергоефективності будинку
ВАРТІСТЬ КОНСТРУКТОРСЬКОГО ПРОЄКТУ:
договірна
КОНСТРУКТОРСЬКИЙ ПРОЄКТ розробляється на підставі АРХІТЕКТУРНОГО ПРОЄКТУ
Стоимость
СТАТТІ: БУДІВЕЛЬНІ КОНСТРУКЦІЇ